2 Bagni 1 Box/Posti auto 184 m2
Caratteristiche principali
Codice
144/2023 U PD
Prezzo
157.500 EUR
Classe
ND
Locali
9
Altre caratteristiche e accessori
Stato Immobile
Buono
Piano
Primo
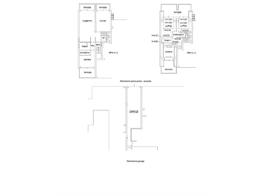
Appartamento sviluppato su due livelli, composto al primo piano da: ingresso, soggiorno e cucina entrambi con accesso alla terrazza, bagno finestrato, disimpegno e camera con terrazza;
al piano secondo (sottotetto) da:
due locali soffitta con accesso su unico terrazzo, disimpegno, bagno e camera con terrazza;
garage al piano semi interrato.
L'immobile viene venduto tramite asta giudiziaria.
Il prezzo indicato si riferisce all'offerta minima accettata per la partecipazione.
MetroQuadro fornisce un servizio di assistenza al fine di rendere più facile e sicuro l'acquisto di un immobile proveniente dal mercato giudiziario: analisi preventiva, conteggio costi accessori ed occulti, assistenza in tutte le fasi della procedura, compresa la liberazione dell'immobile se occupato.
L'acquisto dell'immobile può essere totalmente finanziato tramite mutuo.
Consulenza gratuita per un possibile mutuo con un nostro consulente del credito.
Via emilia 13 13, Rubano (PD)
Cookie preference